DUKAs VillaVent-enheter er optimalisert for å oppfylle de nyeste tekniske kravene til høy varmegjenvinningsgrad og svært lavt strømforbruk.
Enheten kan installeres på loft eller i vaskerom, og med faste eller fleksible rør sørger den for et hjem med konstant tilførsel av frisk luft og resirkulering av varmen fra fuktige rom.
Aggregatet leverer en fri luftmengde på 380 m3/t og 220 m3/t ved 70 Pa, og kan brukes i boliger med en luftmengde på opptil 200 m3/t. Aggregatet er universelt, der bak- og frontplaten kan byttes ut, noe som gjør installasjonen enklere.
I frontplaten på enheten er det to filterluker med tommelskruer, noe som gjør det enkelt å inspisere og skifte filter.
Enheten har et by-pass-spjeld som gir en kjølende effekt om sommeren, ettersom avtrekksluften ledes utenom motstrømsveksleren og tilluften ikke varmes opp ytterligere.
Enheten leveres i tillegg med:
- Wi-Fi-drift
- Universell kapsling
- Inkludert smussfiltre
- Med EC-motor med lavt energiforbruk.
- Varmegjenvinningsgrad opp til 98%.
- Oppfyller kravene i gjeldende byggeforskrifter.
App-kontroll av Aggregat 380 Wi-Fi
Med DUKA Smart-appen kan enheten enkelt betjenes. Enheten kan kobles til hjemmets Wi-Fi og kan styres fra stuen, soverommet og kjøkkenet. I appen kan du endre ventilasjonshastigheten, legge inn en ukeplan for å tilpasse ventilasjonen til hjemmets rytme og regulere luftmengdene for de ulike ventilasjonshastighetene kan enkelt justeres i appens avanserte meny og mange andre funksjoner.
Kontrollpanel for Villa Ventilasjonsaggregater
Et kontrollpanel er tilgjengelig som ekstrautstyr, noe som gjør det enkelt å betjene enheten. Med kontrollpanelet kan du velge mellom tre ventilasjonshastigheter, se filteralarmer og andre alarmer, og styre bypass.
Artikkelnummer
Enhet | Vare nr. | DB nr. |
Power Pack 380 Wi-Fi | 396669 | 2083135 |
Delenumre tilbehør
Enhet | Vare nr. | DB nr. | Rørleggerarbeid nei. |
G4 Støvfilter | 396722 | 2083193 | |
F7 Pollenfilter | 396722 | 2083280 | |
Vannlås | 334218 | 1729205 | 358891932 |
Fuktighetssensor | 340349 | 1808757 | 358891990 |
Metall lyddemper DSLU | 116425 | 1880798 | |
Flex lyddemper | 337608 | 1797811 | |
Kontrollpanel | 396683 | 2083193 |
Et hjem med frisk, godt ventilert luft døgnet rundt
Mange bygninger er i dag så godt isolert og tettet at de ikke kan puste. Dette har en pris i form av inneklimaproblemer forårsaket av fuktig og forurenset luft. Mennesker tilbringer i gjennomsnitt 90% av døgnet innendørs - det er over 20 timer - så det er utrolig viktig å sikre et godt inneklima, og det kan du gjøre med et Villa Ventilation-aggregat fra DUKA.
Dimensjonering av tilslag
Det er to krav i byggeforskriftene for dimensjonering av et ventilasjonsaggregat;
Det første kravet avhenger av boligens størrelse, med et minimumskrav på 0,3 l/s per kvadratmeter boareal.
2. kravet avhenger av antall våtrom i boligen.
Den verdien som er størst i henhold til de to beregningene ovenfor, er min. ventilasjonskravet.
Kapasitet og varmegjenvinningsgrad (VGV) i henhold til BR 18-krav og 70 Pa i systemets mottrykk.
Kraftpakker | Tilkobling | Kapasitet | Varmegjenvinningsgrad | Område | Kapasitet fri blåsing |
VillaVent 90 L | Ø100 / Ø125 mm | 28 l/s | 82-94 % | 90 kvadratmeter | 130 l/s |
Genin 90 L | Ø100 / Ø125 mm | 28 l/s | 73-88 % | 90 kvadratmeter | 130 l/s |
Power Pack 380 Wi-Fi | Ø160 mm | 60 l/s | 87% | 200 kvadratmeter | 105 l/s |
Power Pack 200 Top Wi-Fi | Ø125 mm | 44 l/s | 86 % | 130 kvadratmeter | 55 l/s |
Power Pack 450 Top Wi-Fi | Ø160 mm | 78 l/s | 86% | 260 kvadratmeter | 125 l/s |
Power Pack 690 Topp Wi-Fi | Ø200 mm | 1808757 | 86 % | 380 kvadratmeter | 191 l/s |
Minimumskrav til våtrom
Rom | Luftmengde |
Kjøkkenfasiliteter | 20 l/s15 |
Baderom | 15 l/s |
Vaskerom | 10 l/s |
Separat toalett | 10 l/s |
For eksempel en bolig på 170 kvadratmeter med kjøkken, vaskerom og to bad:
1. krav i henhold til boligstørrelse: 51 l/s (170 * 0,3)
2. våtromskrav: 60 l/s (20+10+15+15+15)
Det er her kravet til våtrom er størst. Det betyr at denne boligen må ha et ventilasjonsaggregat med en kapasitet på min. 60 l/s.
Spesifikke plassbehov finner du i byggeforskrifter.
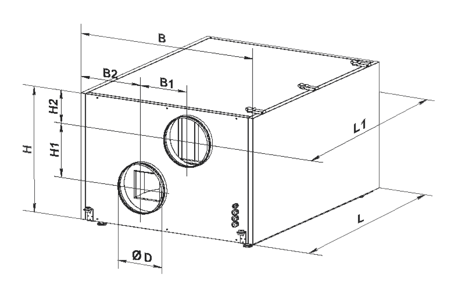
Dimensjoner i mm
Dimensjoner i mm | |
ØD | 157 |
B | 568 |
B1 | 190 |
B2 | 189 |
L | 1083 |
L1 | 1180 |
H | 479 |
H1 | 193 |
H2 | 118 |


























